recommend
こんな方におすすめ
愛知県豊橋市から全国へ
トレーラーハウス製造・販売
ルクラ株式会社
プライベートな
事業にも相性がいい。
case
4
トレーラーハウスをマッサージ店やジムとして利用すれば、リラクゼーションとフィットネスを手軽に提供できます。コンパクトでプライベートが守られる環境で、顧客のニーズに応じたサービスを提供しましょう。

こんな方におすすめ
9年間ジムインストラクターやジム支配人としてのご経歴があるオーナー様が念願だったジムをご開業されました。
その想いとノウハウが詰まったインタビューをお届けします。
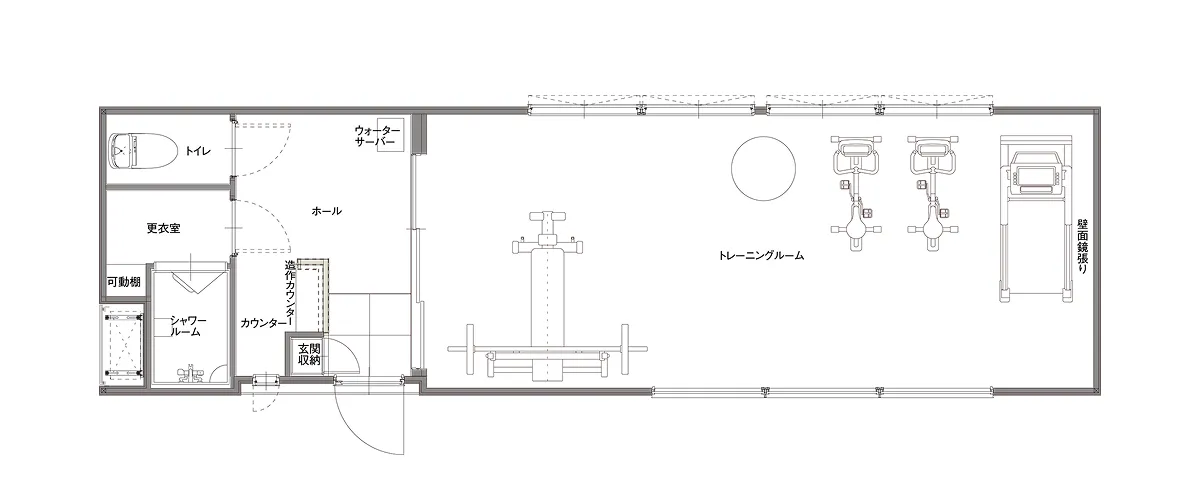
ジムタイプ
LJ11000(全長11m、全幅3.2m)
参考販売価格(税込)1,042万円




※外観CGパースとプランはイメージです。
※上記金額に一部家具・家電、設備器具等は含まれておりません。また、運搬設置費用ほか別途費用が必要となります。
詳細はお気軽にお問い合わせください。
390
美容室
「美容室シダー」様
長野県上伊那郡
more
385
美容室
「美容室 りあん」様
愛知県額田郡幸田町
more
384
美容室
「美容室 TUKIHI(ツキヒ)」様
滋賀県近江八幡市
more
382
美容室・エステサロン
「H CASA(エイチカーサ)」様
愛知県清須市
more
375
美容室
「ulu hairsalon 」様
群馬県高崎市
more
373
美容室
「AFLOduck(アフロダック)」様
埼玉県鶴ヶ島市
more
370
アイラッシュサロン
「lulua. ルルア」様
三重県四日市市
more
365
アイラッシュ&リラクゼーションサロン
「eyelash and relaxation salon utatane」様
神奈川県平塚市
more
362
ビューティーサロン
「Total beauty salon u’i (ウイ)」様
岡山県倉敷市
more
Q
機材等の重量物の搬入設置は可能ですか?
可能です。
事前に設置機材のサイズや重さをお教え頂けましたら、搬入口の設置、補強を行うことも可能です。
走行時の安全を考慮し、機器の搬入取付はご納品後にお願いをさせていただくケースもございますので、あらかじめご了承ください。
Q
個室空間を作ることはできますか?
可能です。
オーダー設計のため、壁やドア、カーテンの設置はもちろん窓もお好みの場所に取付可能です。
Q
室内の高さはどのぐらいですか?
弊社標準仕様は室内高2.3mでございます。
オプション対応にて2.6mまで変更可能です。